Flex

Om Ljunghem Industriell

Stilfullt toetasjes hus med carport

Den store terrassen gjør Ljunghem Industriell til noe helt spesielt. Oppdag et stilig hus for familien som ønsker å bo romslig og nær byen, men som ikke vil gå på kompromiss med plass eller sosialt samvær. I Ljunghem Industriell er det plass til både slektstreff, tenåringsbarn og fritidsinteresser. Her finnes sosiale områder, fire soverom og ekstra lagringsplass som standard. Med en terrasse som både gir utsikt og adskilthet, som prikken over i-en.

Forklaring tekniske data

Samtlige oppgitte mål er i henhold til svensk standard. Selgeren din kan fortelle deg hva som avviker i Norge.

Bruksareal

Den totale flaten innenfor ytterveggene i samtlige etasjeplan. Bruksarealet omfatter også flater for eksempelvis kjøkkenskap, klesskap og varmtvannsbereder.

Grunnflate

Den flaten huset opptar på bakken. Generelt en projeksjon av huset rett ovenfra. Balkong tas med i grunnflaten dersom undersiden er mindre enn 3 meter over bakken. Grunnflate er viktig i forhold til hvor stort du får bygge på en tomt, noe som er angitt i detaljplanen.

Bygningshøyde

Høyden fra tomtens middelnivå opp til skjæringen mellom fasadeplanet og et plan som med 45 graders helling inn mot bygningen berører bygningens tak. Fasaden ut mot gaten utgjør ofte beregningsgrunnlaget. Bygningshøyde er et vanskelig begrep, snakk gjerne med våre selgere dersom du er usikker.

Antall rom

Et rom skal kunne være beboelig, og det må være minst 7 kvadratmeter stort og ha et vindu. Bad og vaskerom teller ikke som rom i et hus, mens kjøkkenet alltid angis separat.

Kontakt oss

Avtal rådgivning

Et godt første steg mot et nytt hus er å snakke med en selger fra Eksjöhus. Rådgivningen er kostnadsfri og uten forpliktelser. Du kan avtale rådgivning med og uten byggeklar tomt. Fyll ut skjemaet, så kontakter vi deg.

Kontakt oss

Prisforespørsel Ljunghem Industriell

Det er vanskelig å selge et hus til fast pris. Den totale prisen avhenger av hvor du skal bygge og hvordan tomten ser ut. Håndverkere og entreprenører har også ulike prisbilder rundt om i landet. Ved å fylle ut skjemaet kan vi raskt gi en indikasjon på hvor ønskehuset ditt havner i pris.

Ljunghem Industriell

Bruksareal
158 m2
Etasjer
2
Antall rom
6 rom og kjøkken
Serie
Flex

    Har du en tomt?

    Takk for din forespørsel!

    Din prisforespørsel er sendt

    I løpet av kort tid vil du få svar på spørsmålet ditt fra nærmeste Eksjöhuskontor.

    Du har vel allerede våre inspirerende kataloger?

    Bestill katalog

    Tilpass Ljunghem etter dine behov

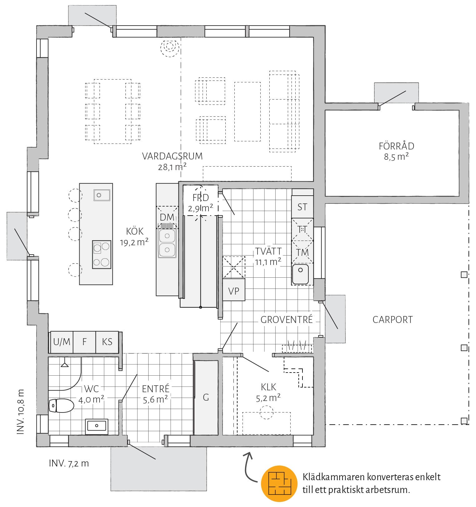
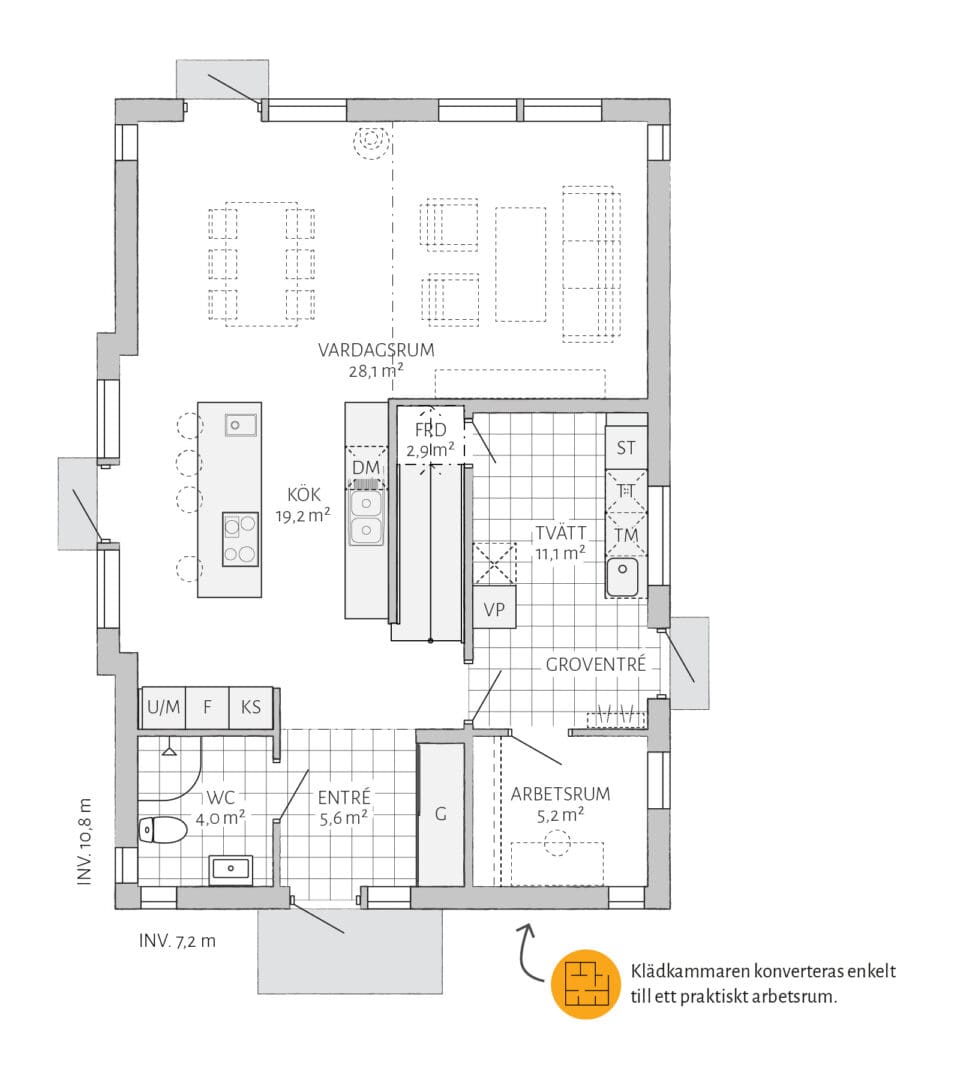
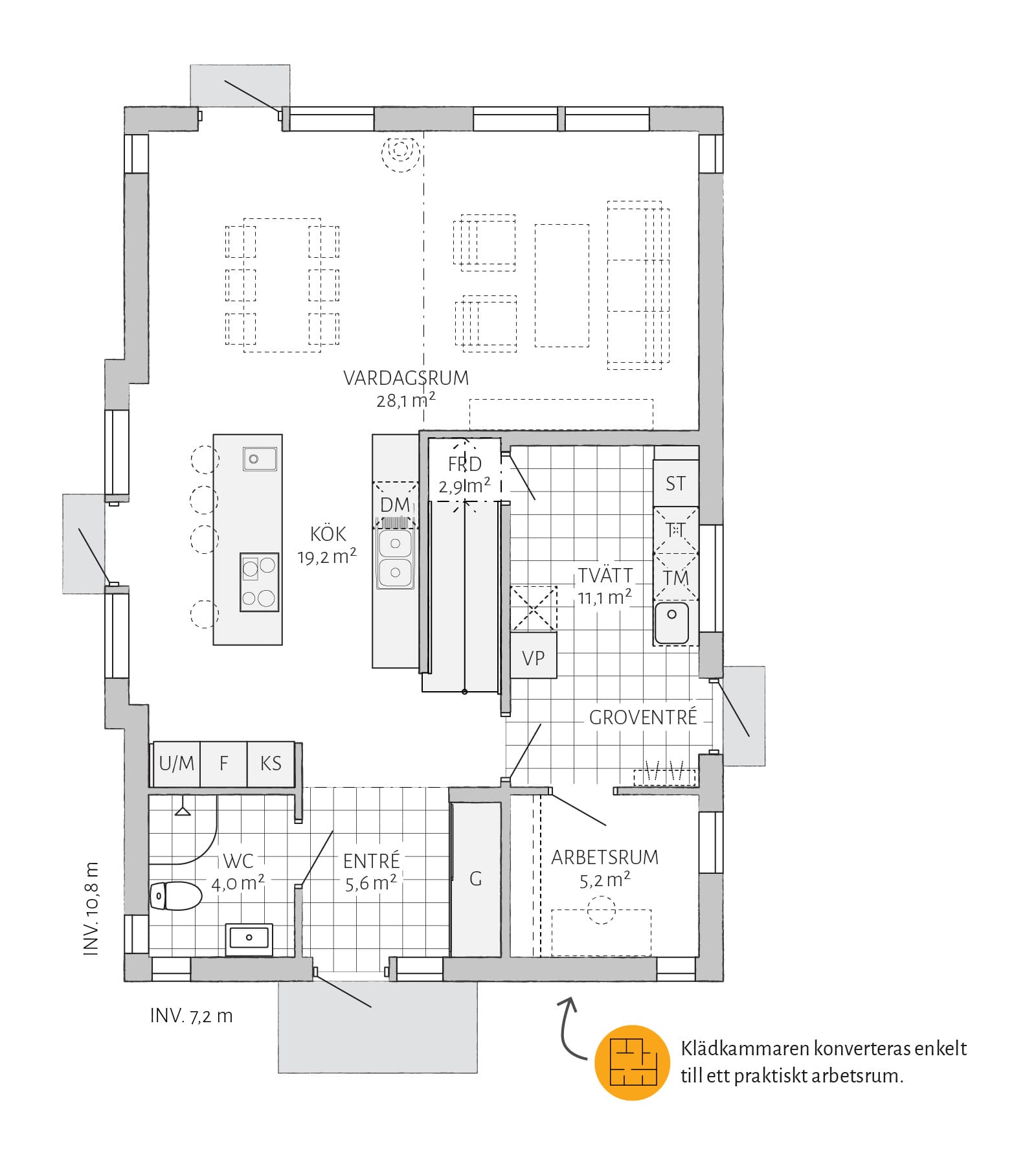
    Ljunghem er lett å tilpasse etter dine behov. Hvorfor ikke åpne opp stuen i tilknytning til den herlige terrassen for større sosiale områder? I første etasje kan garderoben enkelt konverteres til et praktisk arbeidsrom.

    Se mer i tilvalgsplanen nedenfor.

    Ljunghem Industriell

    Plantegning

    Linda Vennberg

    Arkitektens tanker om Ljunghem Industriell

    I Ljunghem kombineres praktiske løsninger for storfamilien med romslige områder som gjør huset til et naturlig samlingssted for venner og familie.

    Personlig preg

    Finn din hustype og stil

    Her er din snarvei til drømmehuset. Velg hustype eller stil og se hele vårt utvalg innenfor valgte kategori.

    Laster...

    Kontakt meg

    Vennligst kontakt meg her

    Fyll ut skjemaet så kommer jeg til å svare så fort jeg har anledning. Vil du heller ringe står nummeret mitt nedenfor.

    Med vennlig hilsen

      Tack för din förfrågan!

      Din fråga är skickad

      Inom kort kommer jag att ta kontakt med dig.