Flex

Om Lyckhem Modern

Moderne 1,5-etasjes hus med sjarmerende veranda

Lyckhem Modern gjør utemiljøet alltid nærværende takket være de mange og helglassede balkongdørene. Det er lett å gå ut i det grønne eller ut på den sjarmerende verandaen for å nyte morgenkaffen. Lyckhem Modern gir New England-stilen et moderne preg og tilpasser den til det moderne familielivet, med sosiale områder, 3 soverom og rikelig med lagringsplass takket være husets 1,5 plan.

Forklaring tekniske data

Samtlige oppgitte mål er i henhold til svensk standard. Selgeren din kan fortelle deg hva som avviker i Norge.

Bruksareal

Den totale flaten innenfor ytterveggene i samtlige etasjeplan. Bruksarealet omfatter også flater for eksempelvis kjøkkenskap, klesskap og varmtvannsbereder.

Grunnflate

Den flaten huset opptar på bakken. Generelt en projeksjon av huset rett ovenfra. Balkong tas med i grunnflaten dersom undersiden er mindre enn 3 meter over bakken. Grunnflate er viktig i forhold til hvor stort du får bygge på en tomt, noe som er angitt i detaljplanen.

Bygningshøyde

Høyden fra tomtens middelnivå opp til skjæringen mellom fasadeplanet og et plan som med 45 graders helling inn mot bygningen berører bygningens tak. Fasaden ut mot gaten utgjør ofte beregningsgrunnlaget. Bygningshøyde er et vanskelig begrep, snakk gjerne med våre selgere dersom du er usikker.

Antall rom

Et rom skal kunne være beboelig, og det må være minst 7 kvadratmeter stort og ha et vindu. Bad og vaskerom teller ikke som rom i et hus, mens kjøkkenet alltid angis separat.

Kontakt oss

Avtal rådgivning

Et godt første steg mot et nytt hus er å snakke med en selger fra Eksjöhus. Rådgivningen er kostnadsfri og uten forpliktelser. Du kan avtale rådgivning med og uten byggeklar tomt. Fyll ut skjemaet, så kontakter vi deg.

Kontakt oss

Prisforespørsel Lyckhem Modern

Det er vanskelig å selge et hus til fast pris. Den totale prisen avhenger av hvor du skal bygge og hvordan tomten ser ut. Håndverkere og entreprenører har også ulike prisbilder rundt om i landet. Ved å fylle ut skjemaet kan vi raskt gi en indikasjon på hvor ønskehuset ditt havner i pris.

Lyckhem Modern

Bruksareal
168 m2
Etasjer
1,5
Antall rom
5 rom og kjøkken
Serie
Flex

    Har du en tomt?

    Takk for din forespørsel!

    Din prisforespørsel er sendt

    I løpet av kort tid vil du få svar på spørsmålet ditt fra nærmeste Eksjöhuskontor.

    Du har vel allerede våre inspirerende kataloger?

    Bestill katalog

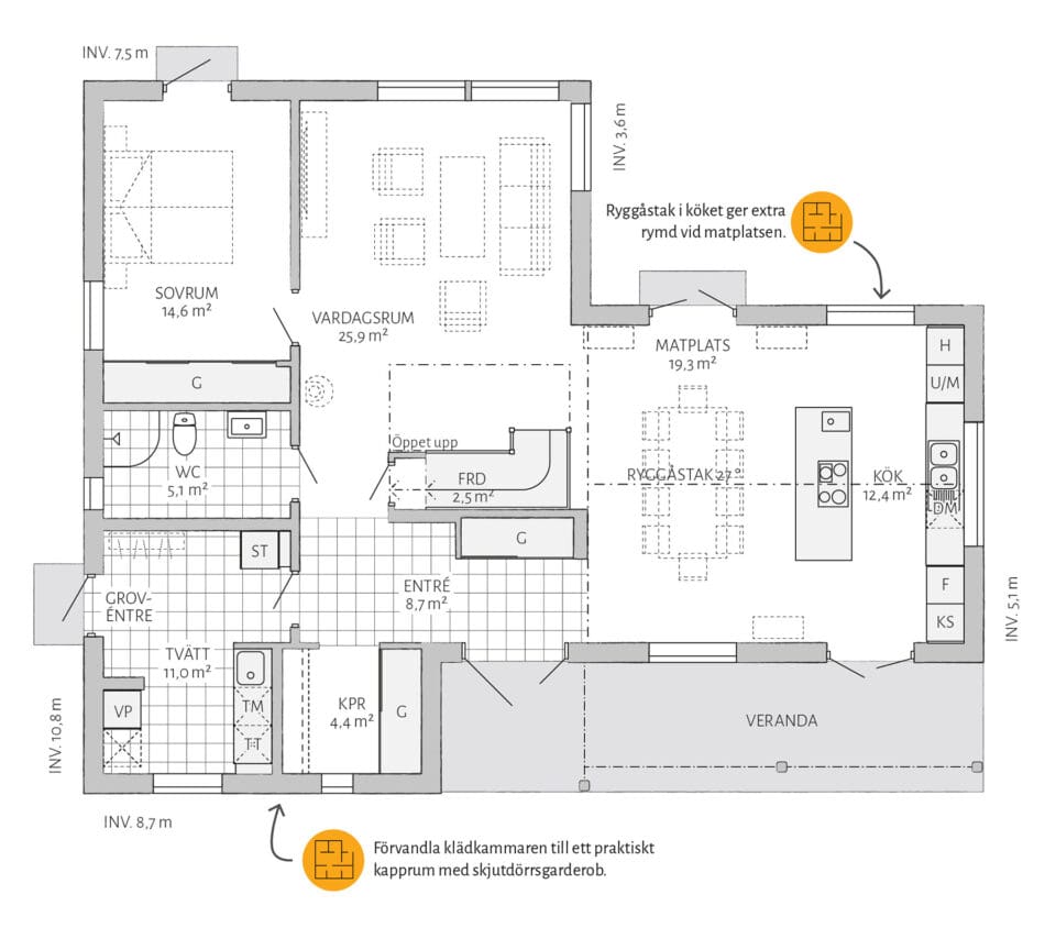
    Tilpass Lyckhem etter dine behov

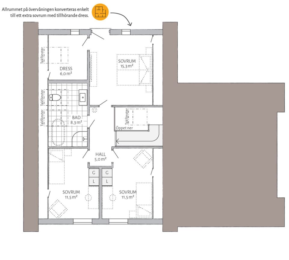
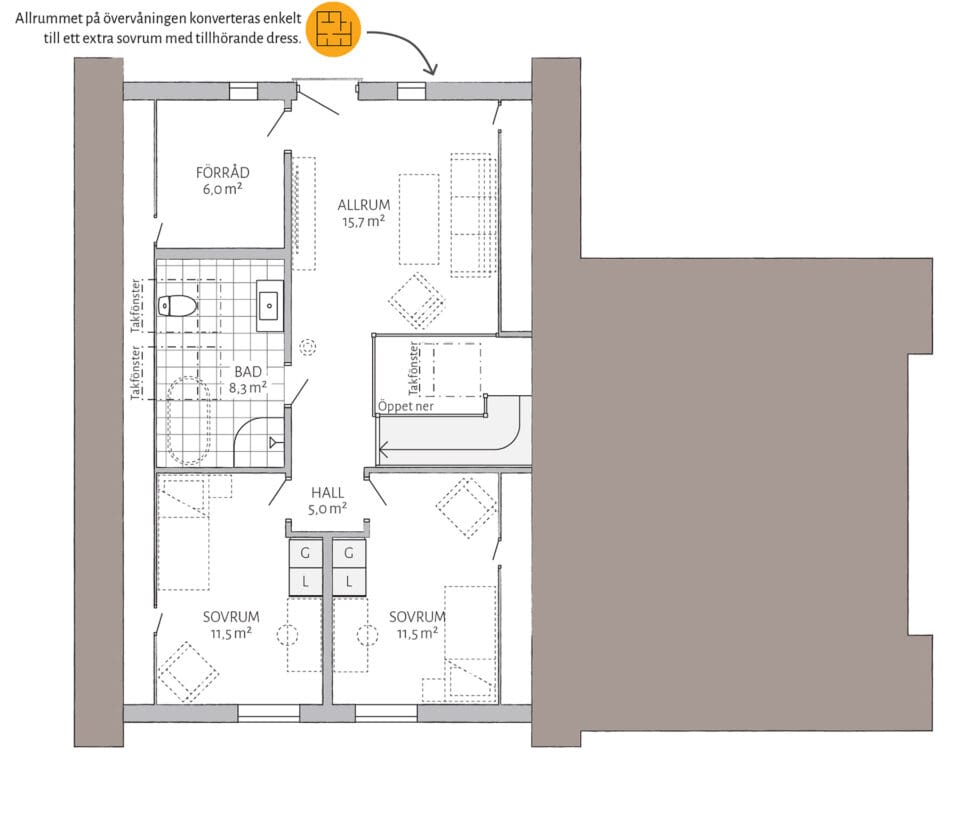
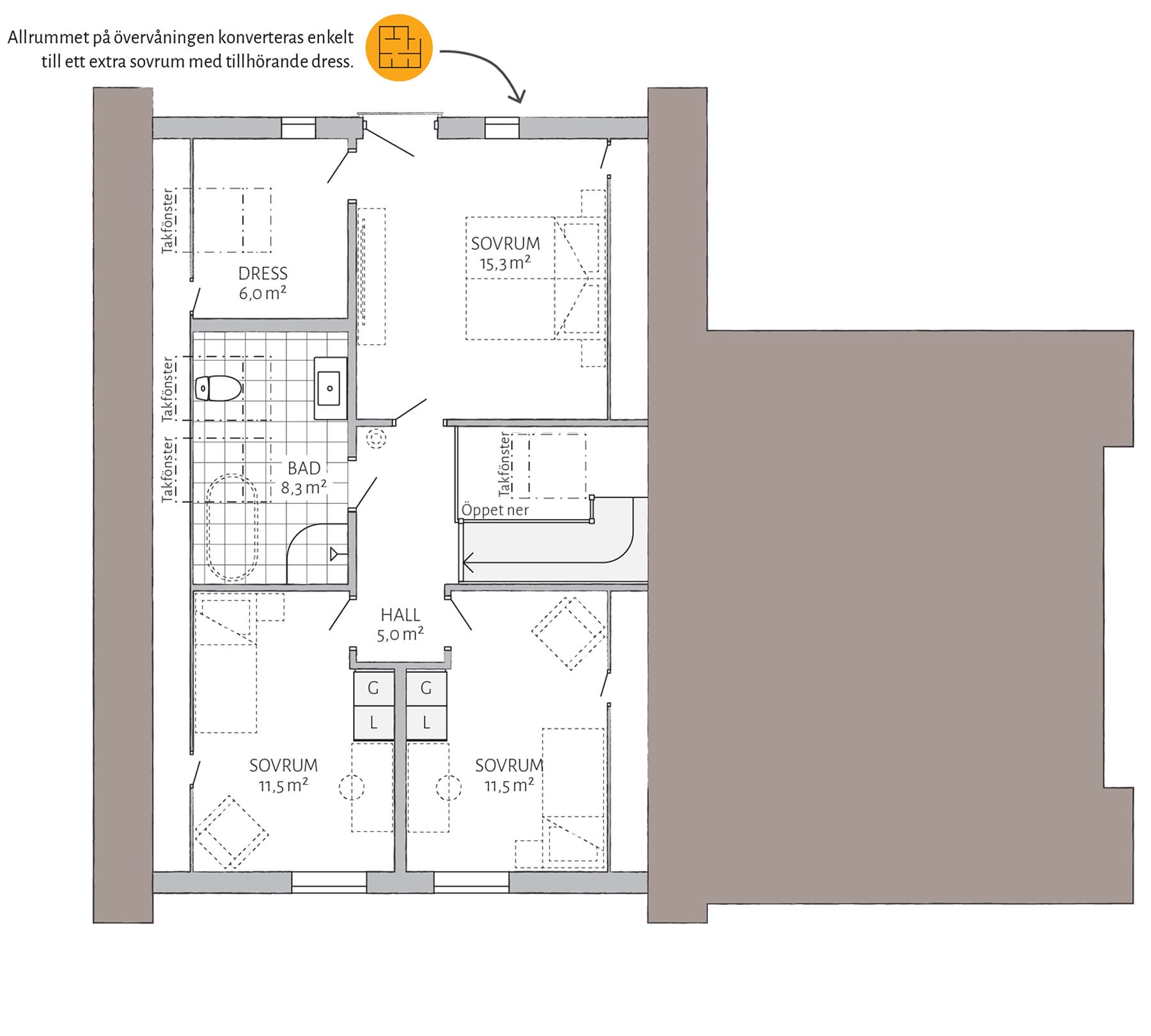
    Lyckhem har muligheter! Velg mønetak på kjøkkenet og opplev en fantastisk romfølelse som strekker seg videre ut i stuen. Gjør allrommet til et ekstra soverom og kompletter med en walk-in-garderobe eller arbeidsrom i tilknytning. Vil du gjøre mer selv? Velg levering med uinnredet loft.

    Se mer i tilvalgsplanen nedenfor.

    Lyckhem Modern

    Plantegning

    Frida Axhed

    Arkitektens tanker om Lyckhem Modern

    Frida Axhed

    Lyckhem passer den aktive familien som trenger rikelig med lagringsplass, men ikke vil gå på kompromiss med stil eller følelse.

    Personlig preg

    Finn din hustype og stil

    Her er din snarvei til drømmehuset. Velg hustype eller stil og se hele vårt utvalg innenfor valgte kategori.

    Laster...

    Kontakt meg

    Vennligst kontakt meg her

    Fyll ut skjemaet så kommer jeg til å svare så fort jeg har anledning. Vil du heller ringe står nummeret mitt nedenfor.

    Med vennlig hilsen

      Tack för din förfrågan!

      Din fråga är skickad

      Inom kort kommer jag att ta kontakt med dig.