Flex

Om Vikhem Traditionell

Enetasjes hus i landlig stil med vinkel

Her er Vikhem, et hyggelig en-etasjes hus for barnefamilier som søker en praktisk bolig med landlig preg. Nyt store middager på det romslige kjøkkenet med tilstøtende stue og nærhet til en generøs terrasse. I Vikhem får barna fritt spillerom i en avskilt del av huset, og den tradisjonelle stilen danner rammen for en perfekt kombinasjon av sosialt samvær og familieliv, fordelt på 152 kvadratmeter med smarte løsninger.

Forklaring tekniske data

Samtlige oppgitte mål er i henhold til svensk standard. Selgeren din kan fortelle deg hva som avviker i Norge.

Bruksareal

Den totale flaten innenfor ytterveggene i samtlige etasjeplan. Bruksarealet omfatter også flater for eksempelvis kjøkkenskap, klesskap og varmtvannsbereder.

Grunnflate

Den flaten huset opptar på bakken. Generelt en projeksjon av huset rett ovenfra. Balkong tas med i grunnflaten dersom undersiden er mindre enn 3 meter over bakken. Grunnflate er viktig i forhold til hvor stort du får bygge på en tomt, noe som er angitt i detaljplanen.

Bygningshøyde

Høyden fra tomtens middelnivå opp til skjæringen mellom fasadeplanet og et plan som med 45 graders helling inn mot bygningen berører bygningens tak. Fasaden ut mot gaten utgjør ofte beregningsgrunnlaget. Bygningshøyde er et vanskelig begrep, snakk gjerne med våre selgere dersom du er usikker.

Antall rom

Et rom skal kunne være beboelig, og det må være minst 7 kvadratmeter stort og ha et vindu. Bad og vaskerom teller ikke som rom i et hus, mens kjøkkenet alltid angis separat.

Kontakt oss

Avtal rådgivning

Et godt første steg mot et nytt hus er å snakke med en selger fra Eksjöhus. Rådgivningen er kostnadsfri og uten forpliktelser. Du kan avtale rådgivning med og uten byggeklar tomt. Fyll ut skjemaet, så kontakter vi deg.

Kontakt oss

Prisforespørsel Vikhem Traditionell

Det er vanskelig å selge et hus til fast pris. Den totale prisen avhenger av hvor du skal bygge og hvordan tomten ser ut. Håndverkere og entreprenører har også ulike prisbilder rundt om i landet. Ved å fylle ut skjemaet kan vi raskt gi en indikasjon på hvor ønskehuset ditt havner i pris.

Vikhem Traditionell

Bruksareal
152 m2
Etasjer
1
Antall rom
6 rom og kjøkken
Serie
Flex

    Har du en tomt?

    Takk for din forespørsel!

    Din prisforespørsel er sendt

    I løpet av kort tid vil du få svar på spørsmålet ditt fra nærmeste Eksjöhuskontor.

    Du har vel allerede våre inspirerende kataloger?

    Bestill katalog

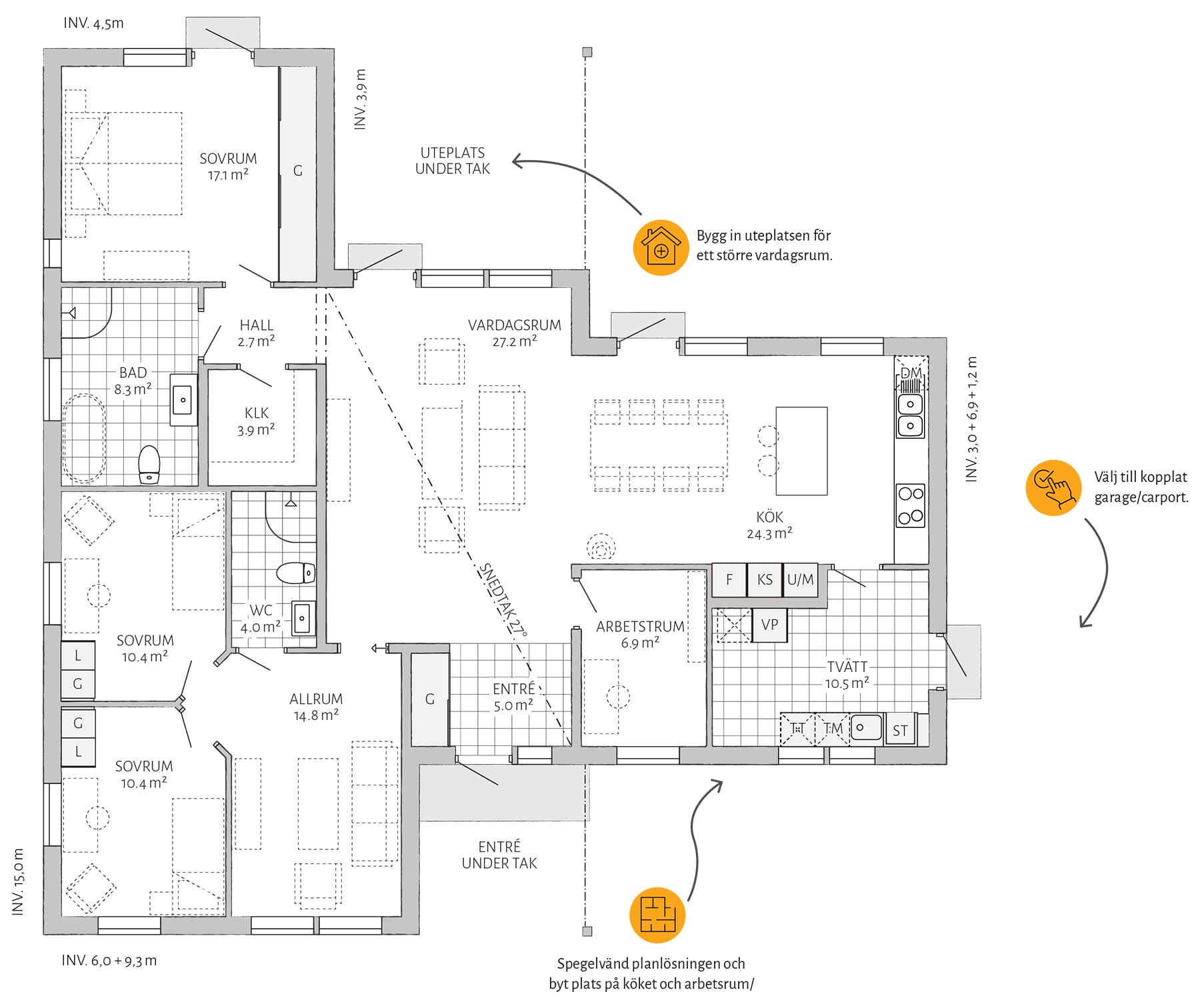
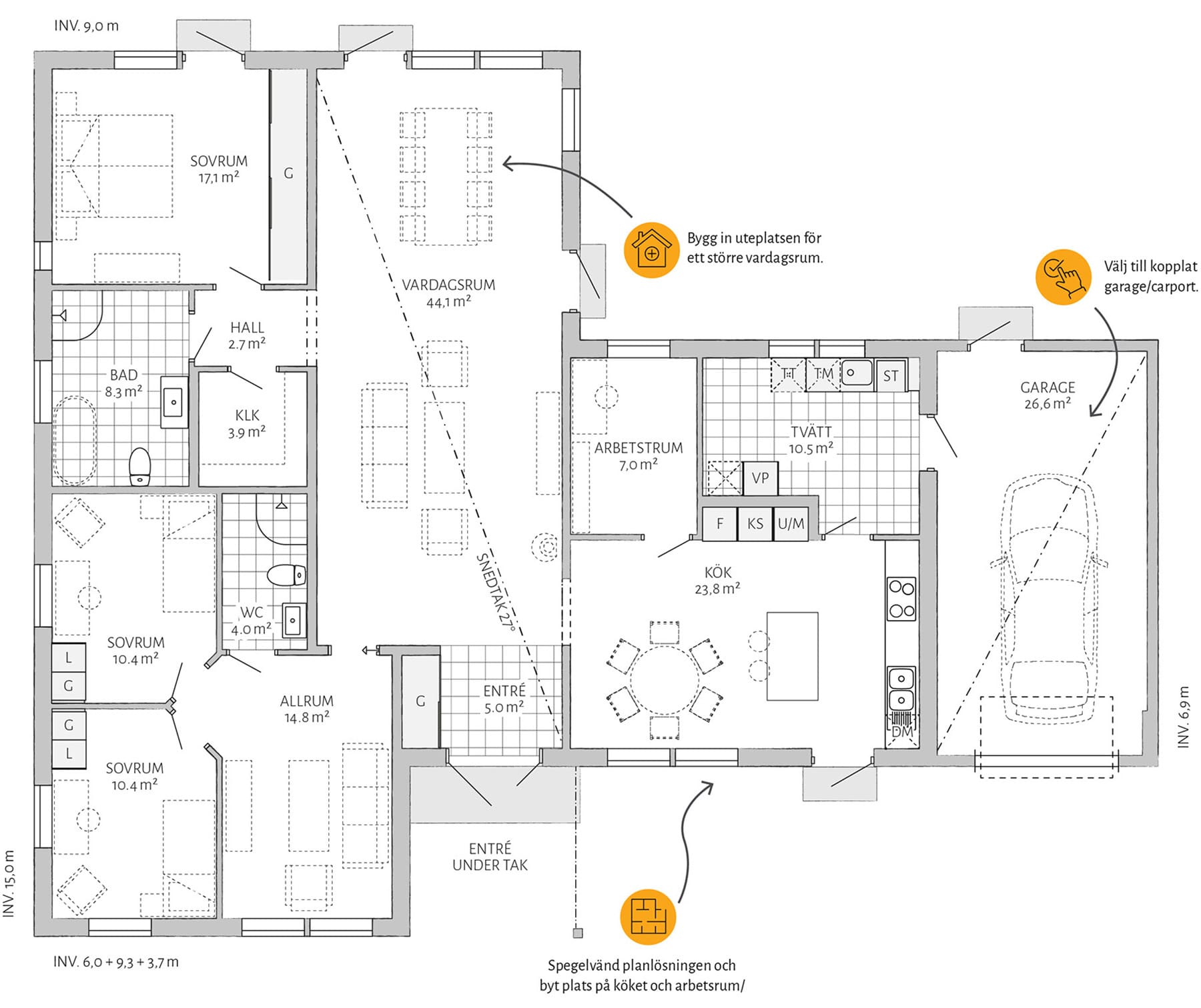
    Tilpass Vikhem etter dine behov

    Bygg inn uteplassen for en enda større stue eller skap et avskilt kjøkken med fokus på matlaging ved å plassere kjøkkenet mot forsiden. Det finnes også muligheter for å koble til en garasje for større bekvemmelighet og ekstra oppbevaring.

    Se mer i tilvalgsplanen nedenfor.

    Vikhem Traditionell

    Plantegning

    Pernilla Gustafsson

    Arkitektens tanker om Vikhem Traditionell

    Pernilla Gustafsson

    De store vindusflatene gir et flytende lys som forsterker den skandinaviske følelsen i Vikhem.

    Personlig preg

    Finn din hustype og stil

    Her er din snarvei til drømmehuset. Velg hustype eller stil og se hele vårt utvalg innenfor valgte kategori.

    Laster...

    Kontakt meg

    Vennligst kontakt meg her

    Fyll ut skjemaet så kommer jeg til å svare så fort jeg har anledning. Vil du heller ringe står nummeret mitt nedenfor.

    Med vennlig hilsen

      Tack för din förfrågan!

      Din fråga är skickad

      Inom kort kommer jag att ta kontakt med dig.