Flex

Om Sjöhem Modern

Moderne enetasjes hus med tverrstilte gavler

Sjöhem Modern gir et staselig inntrykk med sine to gavler og symmetriske fasade. Denne følelsen forsterkes når du går inn i huset, hvor du møtes av en herlig hall med vakkert gjennomlys fra de store helglassvinduene i stuen. Med sin praktiske H-form rommer Sjöhem Modern både store sosiale områder og private rom der du kan trekke deg tilbake for å få ro og hvile. En perfekt kombinasjon av kreativitet og ro.

Forklaring tekniske data

Samtlige oppgitte mål er i henhold til svensk standard. Selgeren din kan fortelle deg hva som avviker i Norge.

Bruksareal

Den totale flaten innenfor ytterveggene i samtlige etasjeplan. Bruksarealet omfatter også flater for eksempelvis kjøkkenskap, klesskap og varmtvannsbereder.

Grunnflate

Den flaten huset opptar på bakken. Generelt en projeksjon av huset rett ovenfra. Balkong tas med i grunnflaten dersom undersiden er mindre enn 3 meter over bakken. Grunnflate er viktig i forhold til hvor stort du får bygge på en tomt, noe som er angitt i detaljplanen.

Bygningshøyde

Høyden fra tomtens middelnivå opp til skjæringen mellom fasadeplanet og et plan som med 45 graders helling inn mot bygningen berører bygningens tak. Fasaden ut mot gaten utgjør ofte beregningsgrunnlaget. Bygningshøyde er et vanskelig begrep, snakk gjerne med våre selgere dersom du er usikker.

Antall rom

Et rom skal kunne være beboelig, og det må være minst 7 kvadratmeter stort og ha et vindu. Bad og vaskerom teller ikke som rom i et hus, mens kjøkkenet alltid angis separat.

Kontakt oss

Avtal rådgivning

Et godt første steg mot et nytt hus er å snakke med en selger fra Eksjöhus. Rådgivningen er kostnadsfri og uten forpliktelser. Du kan avtale rådgivning med og uten byggeklar tomt. Fyll ut skjemaet, så kontakter vi deg.

Kontakt oss

Prisforespørsel Sjöhem Modern

Det er vanskelig å selge et hus til fast pris. Den totale prisen avhenger av hvor du skal bygge og hvordan tomten ser ut. Håndverkere og entreprenører har også ulike prisbilder rundt om i landet. Ved å fylle ut skjemaet kan vi raskt gi en indikasjon på hvor ønskehuset ditt havner i pris.

Sjöhem Modern

Bruksareal
150 m2
Etasjer
1
Antall rom
6 rom og kjøkken
Serie
Flex

    Har du en tomt?

    Takk for din forespørsel!

    Din prisforespørsel er sendt

    I løpet av kort tid vil du få svar på spørsmålet ditt fra nærmeste Eksjöhuskontor.

    Du har vel allerede våre inspirerende kataloger?

    Bestill katalog

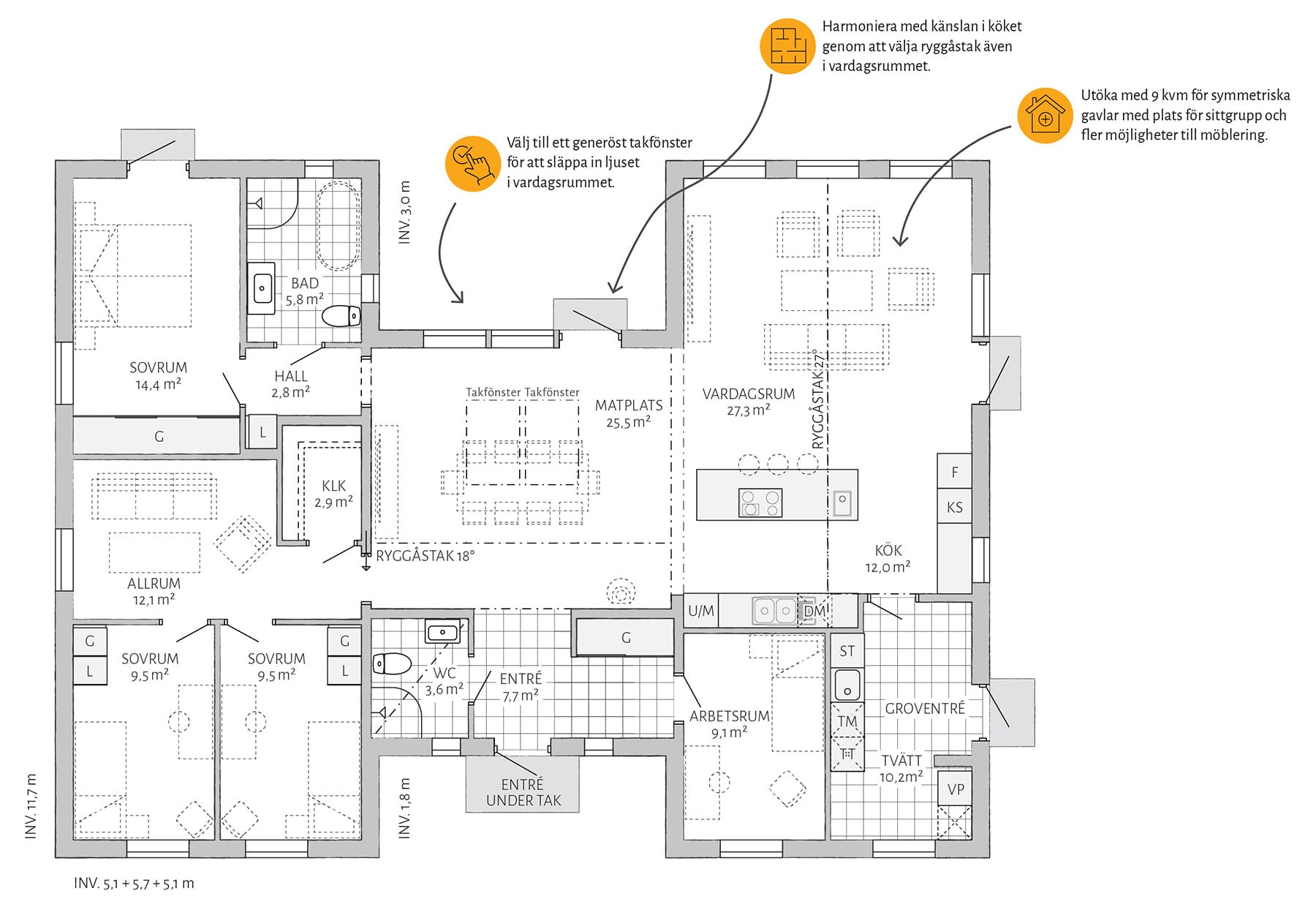
    Tilpass Sjöhem etter dine behov

    Hvordan vil du tilpasse ditt Sjöhem? Kanskje vil du skape en enda større følelse av rom ved å velge til mønetak i stuen? Eller lager du en ekstra utgang til hagen ved å velge en vindusdør i allrommet? Med Sjöhem finnes alle muligheter!

    Se mer i tilvalgsplanen nedenfor.

    Sjöhem Modern

    Plantegning

    Johan Nycroft

    Arkitektens tanker om Sjöhem Modern

    Johan Nycroft, Chefsarkitekt, Eksjöhus

    Det er de små detaljene som gjør Sjöhem til en større opplevelse, som gavlvinduet hvis vinkel følger taket og den generøse vinduspartiet som slipper inn lyset i stuen.

    Personlig preg

    Finn din hustype og stil

    Her er din snarvei til drømmehuset. Velg hustype eller stil og se hele vårt utvalg innenfor valgte kategori.

    Laster...

    Kontakt meg

    Vennligst kontakt meg her

    Fyll ut skjemaet så kommer jeg til å svare så fort jeg har anledning. Vil du heller ringe står nummeret mitt nedenfor.

    Med vennlig hilsen

      Tack för din förfrågan!

      Din fråga är skickad

      Inom kort kommer jag att ta kontakt med dig.